前沿拓展:年轻女性的服装店
成都30岁时尚女主人的个性服装店,120㎡纯工业风,在个性和时尚之中张扬
前言:此次改造的案例略微不同,不是标准的民用住宅,而是商业店铺,业主是一位30岁的女士,在给别人打工多年之后,也想成为自己的老板。
女主人在成都商圈开了一家服装店,这家服装店主要的客户是年轻的时尚女性,所以设计师在改造的过程之中也是借鉴了多的现代元素,纳入了比较时尚个性的风格,让整间店铺的主题更加突出。

房屋户型:店铺
房屋面积:120平方米
装修预算:60万
所在城市:四川 成都
设计师:张天爱
主要建材:天然大理石材、烤漆玻璃、天然实木木皮、超耐磨地板、人造石

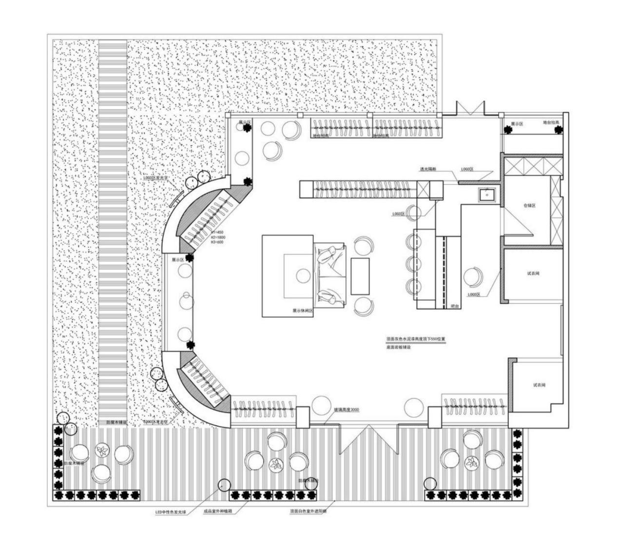
【户型图】

整个空间的风格定义在个性时尚,所以全屋的设计都比较的大胆,选择了年轻而且充满创意的元素进行渲染,全屋都选择了比较个性化的主题风格,呼应着业主这间服装店的主题。
整体在硬装上比较的干练,局部上更加凸显出一种休闲自由的气息,让来到店里的顾客也能感受到一种自由而且轻松的购物氛围。

【玄关】

设计重点:空间注重仪式感
店铺的门口就是一张招牌,虽然是固定的却能起到大的影响作用,所以设计是在玄关的设计上下足了功夫设计师体现出这家服装店的主题风格又要给业主带来一种吸引力。

正门口专门用造型摆件做点缀,白色的背景墙搭配着不同的装饰品,让整个空间充满理性的元素又能够拥有别样的仪式感。

简洁明快的色彩和线条勾勒出一个低调而且带有高级气息的空间,让来到店里的客人都能感受到一种活泼而且充满时尚气息的氛围。
门口特意选择了弧形门洞,让整个空间外观上更加得时尚和别致,给人带来眼前一亮的视觉冲击。

在进门口的展示区特意选择了工业风格的吊顶,彰显出空间的品质和格调。
【大厅】
设计重点:空间果更加大气简洁
没有按照常规的布局,而是将沙发和展示区设计在同一片区域,周围则是环绕行动线,让顾客在购物的时候也能随时放松。

随处可见的线条让空间呈现出一种高级大气的感觉,在不同的角度都能发现空间不同的美感。

纯纯的工业风吊顶搭配着射灯,整个空间变得更加多元化和个性化。

沙发区域的布局更加的随性,一张工业风格的地毯搭配一张小茶几,客人就可以在这里暂时放慢脚步,欣赏衣服的同时也能暂时放松一下。

装饰品和展示架之间的搭配让整个空间的氛围烘托到,按照顺序陈列的衣服也能起到吸引眼球的果,让顾客可以更加轻松的搭配。

低调的原木色让空间更加的理性,在搭配暖白色的大理石台面,形成了错落有致的空间美感。

展示台的下方是可以收纳的空间,盒子和袋子全部存放在其中,日常拿取更加方便而且也不会给空间的颜值带来任何影响。

落地玻璃窗可以让来往的行人一眼看到屋内的样子,专门陈列在玻璃窗边的模特造型可以更好地凸显出产品的风格和主题,吸引着过路的行人。

每一处细节上的搭配都体现着业主和设计师的审美,在整个空间之中运用着不同的元素以及服装的自身魅力,吸引着更多顾客的到来。

为了逛街的顾客能够有更多歇脚的空间,在结算柜台的前面还专门设计了吧台桌椅,这样在结账的时候客人也可以坐着等待,颇具人性化的设计让顾客感觉到亲切。

总结:虽然不是常规的民用住宅,但是商铺的设计同样拥有多的挑战,不仅要满足内部空间基本的使用功能,更重要的是要起到一个宣传以及招揽顾客的果,整体更需要注重多的细节。
【图片若有侵权,麻烦私信删稿】
拓展知识:年轻女性的服装店